Header

Suche

Der Nordhallenkomplex und der Ausbau der Agora von Iaitas/Ietas in hellenistisch-römischer Zeit

von Alexandra Tanner

  • Nordhallenkomplex
  • Nordhallenkomplex Plan

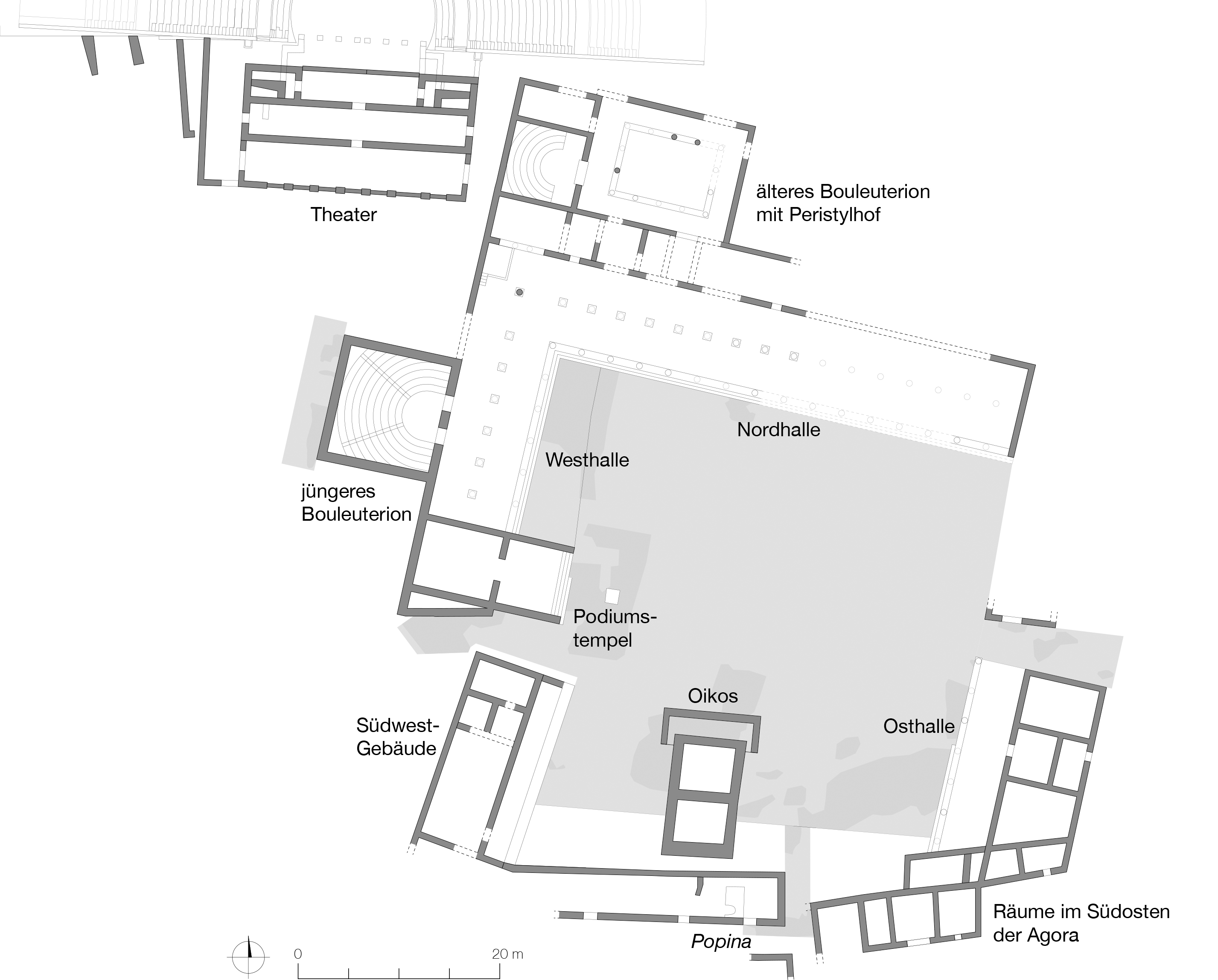
Die Agora von Iaitas/Ietas wurde in hellenistisch-römischer Zeit nach griechischem Vorbild angelegt. Sie ist neben den öffentlichen Zentren von Morgantina, Segesta, Solunt und Haleasa eine der architektonisch bedeutendsten Agorai auf Sizilien. Der annähernd quadratische, ca. 1700 m2 grosse Platz wird im Westen, Norden und Osten von Säulenhallen begrenzt, welche Versammlungsräume in den rückwärtigen Bereichen sowie zwei zum Platz orientierte Tempel integrieren. Der Nordhallenkomplex, der aus einer 56 m langen zweischiffigen Halle, Nebenräumen sowie einem Bouleuterion und einem Peristylhof besteht, ist die grösste bauliche Anlage an der Agora. Er muss eine zentrale Rolle im Rahmen der monumentalen Ausgestaltung der Stadt gespielt haben und von seinen Funktionen her auch für das Gemeinwesen und die städtische Elite von hoher Bedeutung gewesen sein.

Die Errichtung des Nordhallenkomplexes und der Ausbau der Agora erfolgten aufgrund der jüngsten Forschungsergebnisse erst später als bisher angenommen, nämlich im Verlauf des fortgeschrittenen Hellenismus bis in die augusteische Zeit, was es zu präzisieren gilt. In dieser Hinsicht ist der wohl erst gegen Ende des 2. Jhs. v. Chr. an die Nordhalle angebaute Westhallenkomplex mit dem sog. jüngeren Bouleuterion und einem Podiumstempel wichtig. Ziel des Projekts ist es daher, differenzierte Beobachtungen zur chronologischen Abfolge des Nordhallenkomplexes in Bezug zur angrenzenden Bebauung, zur Rekonstruktion und zur Typologie zu gewinnen und diese in einen grösseren Kontext zu stellen.

Die bau- und städtebautypologische Bandbreite der an der Agora errichteten Bauten reicht von typisch griechischen Elementen, wie die aus Kleinasien seit dem 3. Jh. v. Chr.bekannten Baukomplexe mit Bouleuterien bis zu spezifisch römischen Elementen wie ein Podiums-Tempel, ein als Tribunal gedeutetes Podium in der Nordstoa sowie die Tendenz, die Agora peristylartig zu fassen. Die Agora von Iaitas/Ietas, soll im Hinblick auf diese Entwicklungen untersucht werden, wobei auch lokalspezifische Eigenheiten zu berücksichtigen sind.

Weiterführende Informationen

zur Person

zum Feldprojekt